Förderung des Rotmilans

Foto: Schoepet CCBYSA 4.0 commons.wikimedia.org

Vorstellung der Art

Inhalt

Seit 2002 führen wir Maßnahmen zum Schutz des Rotmilans durch. Schwerpunkt ist dabei die Verbesserung des Nahrungs- und Nistangebotes.

Der Rotmilan (Milvus milvus) stellt für die Bundesrepublik Deutschland eine avifaunistische Besonderheit dar. Von insgesamt rund 250 Brutvogelarten ist sie die einzige Art, von der gut 50% der Weltpopulation in Deutschland brütet. Allein daraus leitet sich eine herausragende Verantwortung der Bundesrepublik Deutschland und jedes einzelnen Bundeslandes für den Rotmilan ab.

In der EU-Vogelschutzrichtlinie ist der Rotmilan im Anhang 1 gelistet.

Michael Graf
Foto: Michael Graf, commons.wikimedia.org

Sachsen-Anhalt nimmt sowohl mit den höchsten Dichten als auch mit den meisten Brutpaaren eine besondere Stellung ein und trägt in erhöhtem Maß eine Verantwortung zum Schutz und Erhalt dieser Greifvogelart.

2026-2029 ELER-Projekt

Projekt „Bestandssichernde Maßnahmen zum Schutz des Rotmilans (Milvus milvus) im Bereich der Magdeburger Börde, des Börde-Hügellands sowie der Bode-Niederung“ 
Schwerpunkte des Projektes sind:
  • weitere Verbesserung der Habitatsituation für den Rotmilan (Milvus milvus) im Bereich der Magdeburger Börde, des Börde-Hügellands sowie der Bodeniederung (ca. 316 km²).
  • Erfassung des Brutbestands und eine Untersuchung der Habitatnutzung 
  • Untersuchung der Umsetzung von Maßnahmen des Kooperativen Naturschutz in der Agrarlandschaft in Bezug auf die Nutzung der Flächen durch den Rotmilan
  • Test von Strategien zur Neu-, Nach- beziehungsweise Unterpflanzung von Flurgehölzen in der offenen Landschaft
Das Projekt wird gefördert:

im Rahmen des Entwicklungsprogramms für den ländlichen Raum des Landes Sachsen-Anhalt 2014-2020 (EPLR) aus Mitteln des Europäischen Landwirtschaftsfonds zur Entwicklung des ländlichen Raums (ELER)
und des Landes Sachsen-Anhalt

2020-2023 ELER-Projekt

Projekt „Habitatstruktur und Habitatnutzung des Rotmilans (Milvus milvus) im Bereich der Magdeburger Börde, des Börde-Hügellands sowie der Bodeniederung“
Schwerpunkte des Projektes sind:
  • Verbesserung der Habitatsituation für den Rotmilan (Milvus milvus) im Bereich der Magdeburger Börde, des Börde-Hügellands sowie der Bodeniederung (ca. 316 km²).
  • Erfassung des Brutbestands und eine Untersuchung der Habitatnutzung 
Das Projekt wird gefördert:

im Rahmen des Entwicklungsprogramms für den ländlichen Raum des Landes Sachsen-Anhalt 2014-2020 (EPLR) aus Mitteln des Europäischen Landwirtschaftsfonds zur Entwicklung des ländlichen Raums (ELER)
und des Landes Sachsen-Anhalt

Ein besonderer Fokus liegt auf den Flächen des am niederländischen Modell orientierten Pilotprojekts „Kooperativer Naturschutz in der Landwirtschaft“.

Die Ergebnisse liefern Zuarbeiten für die künftige Maßnahmenplanung – im Dialog mit den beteiligten Akteuren sollen Vorschläge für innovative Maßnahmen mit einer guten Integrationsfähigkeit in die Bewirtschaftungspraxis bei gleichzeitig guter Wirksamkeit für die Art entwickelt werden.

Ein weiterer Schwerpunkt der Projektarbeit ist die Charakterisierung der Bruthabitate und die Entwicklung von umsetzungsreifen Maßnahmen zu deren Sicherung.

In Risikogebieten werden die Hostbäume gegen Prädation durch Raubsäuger (insbesondere Waschbären) gesichert, um den Bruterfolg zu steigern.

Horstbaumschutz gegen Waschbären
Horstbaumschutz gegen Waschbären

Das Projektvorhaben wurde in enger Abstimmung mit dem Rotmilanzentrum am Museum Heineanum (Halberstadt) entwickelt. Beringungen und Besenderungen erfolgen nach Erfassung der Horststandorte im Rahmen dieses Projektes anschließend durch Mitarbeiter des Rotmilanzentrums am Heineanum.
Gleichermaßen bildet die Zusammenarbeit mit der Stiftung Kulturlandschaft Sachsen-Anhalt die Grundlage für eine Erfassung der Habitatnutzung von Maßnahmeflächen im Modellprojekt „Kooperativer Naturschutz in der Landwirtschaft“.

2009-2014 ELER-Projekt

Schutz und Entwicklung des Rotmilanbestands im Bereich der Magdeburger Börde, dem Nördlichen und Nordöstlichen Harzvorland sowie der Bodeniederung”
Schwerpunkte des Projektes waren:
  • Erarbeitung von praktischen Maßnahmen zum Schutz und zur Enwicklung des Rotmilans und des Schwarzmilans
  • Ist-Zustands-Analyse
Das Projekt wurde gefördert:

im Rahmen des Entwicklungsprogramms für den ländlichen Raum 2007-2013 (ELER)  aus Mitteln des Europäischen Landwirtschaftsfonds zur Entwicklung des ländlichen Raums (ELER)
und des Landes Sachsen-Anhalt

Karte des Projektgebietes und der Naturräume

Es erfolgte eine Horstkartierung und Bewertung der Horstbäume. Die Bestände des Rotmilans und des Schwarzmilans wurden erfasst.

Außerdem erfolgte jährlich eine Erfassung der Nahrungshabitatflächen. Diese zeigte deutlich, dass sich das jährliche Nahrungsangebot für den Rotmilan von März bis August drastisch verschlechtert.

Übersichtskarte Horste mit Besatz 2014
Karte des Projektgebietes und der Naturräume

Eignung der landwirtschaftlichen Fläche als Nahrungshabitat für den Rotmilan – März-August 2009

Weiterhin wurden in Feldgehölzen auf ca. 30 km Länge Pflegemaßnahmen und Nachpflanzungen durchgeführt. Damit wurde eine Grundlage für eine künftige Generation von Horstbäumen geschaffen und die häufig artenverarmten Feldgehölze wurden aufgewertet.

.

Karte Standorte der praktischen Maßnahmen
Karte Standorte der praktischen Maßnahmen

In Zusammenarbeit mit mehreren landwirtschaftlichen Unternehmen wurde Luzerne angebaut und zu vereinbarten Zeiten während der Aufzucht der jungen Rotmilane gemäht. Während die überwiegende Zahl der angebauten Kulturen im Jahresverlauf für den Rotmilan als Jagd- bzw. Nahrungshabitat zunehmend ungeeignet ist, bieten die Luzerneflächen nach einem Schnitt optimale Bedingungen zum Beutegreifen. Für den zusätzlichen Aufwand und etwaige Verluste durch die termingebundene Mahd erhielten die beteiligten Landwirte eine finanzielle Entschädigung.

.

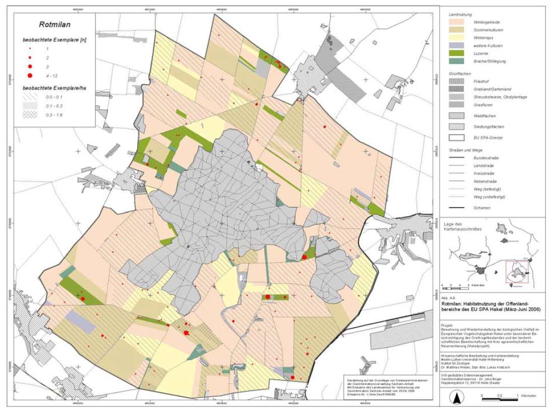
2002-2007 Hakel-Projekt

Projekt „Bewahrung und Wiederherstellung der biologischen Vielfalt im Europäischen Vogelschutzgebiet Hakel unter besonderer Berücksichtigung des Greifvogelbestandes und der landwirtschaftlichen Bewirtschaftung mit ihrer agrarwirtschaftlichen Neuorientierung „

Im Hakelprojekt wurde wissenschaftlich untersucht, wo der Rotmilan brütet und in welchen landwirtschaftlichen Kulturen er bevorzugt jagt. Durch Flächenmanagementmaßnahmen wurde versucht, seine Nahrungsgrundlage zu verbessern. Außerdem erfolgte die Pflanzung von Feldgehölzen auf 27 km Länge.

 

Mehr Informationen zu diesem Projekt finden Sie auf der

WordPress Cookie Hinweis von Real Cookie Banner